Villas Formentera på Vistabella Golf Resort representerar toppen av lyxigt boende i natursköna Orihuela Costa, inbäddat mellan de charmiga städerna San Miguel och Los Montesinos. Dessa utsökta villor erbjuder en oöverträffad livsstil, som ligger i en prestigefylld semesterort med förstklassiga bekvämligheter.
Resortens säkra entré garanterar invånarna sinnesfrid, medan de omfattande faciliteterna, inklusive en 18-håls golfbana, padelbanor, bowlingbanor, snabbköp och ett lockande utbud av barer och restauranger, tillgodoser alla behov och önskemål. Med planer på gång för ett nytt klubbhus, champagnebar, sushibar, spahotell, konstgjord strand, tennisbana, fotbollsplan, gourmetbar och mer, är resorten redo att höjas till en lyxig 5-stjärnig destination.
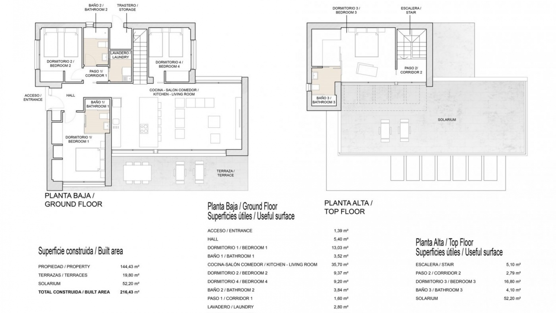
Den fantastiska Formentera-villan exemplifierar lyx och sofistikering, byggd enligt de högsta standarderna för hantverk. Bottenvåningen har en rymlig lounge med altandörrar som leder ut till den privata trädgården, komplett med en orörd pool - en idealisk miljö för avkoppling och underhållning utomhus. Ett kök/matplats i öppen planlösning och en bekväm tvättstuga förbättrar boytans funktionalitet.
På denna nivå finns ett stort sovrum med eget badrum och inbyggda garderober, samt ytterligare två dubbelrum med inbyggda garderober, vilket ger gott om boende för gäster eller familjemedlemmar. Ett gästtoalett ger ytterligare bekvämlighet.
När du stiger upp till första våningen kommer du att upptäcka den lyxiga master-sviten, komplett med en klädkammare, fullt utrustat badrum och en vidsträckt 52 m² övre solterrass - en lugn oas med fantastisk utsikt över det omgivande landskapet.
Vistabella Golf Resort är mer än bara ett bostadsområde; det är ett pulserande samhälle inbäddat bland grönskande kullar och berg. Under åren har det utvecklats till ett resmål året runt och lockar invånare som väljer att göra det till sitt permanenta hem eller tillbringa längre perioder här. De närliggande städerna San Miguel och Los Montesinos ligger bara en kort bilresa bort, och erbjuder ytterligare bekvämligheter och kulturella upplevelser. Dessutom är de orörda stränderna med blå flagg lättillgängliga, vilket gör denna plats idealisk för både avkoppling och rekreation.
