Modern New Build Homes in Calpe Just 450 m from Playa del Cantal Roig
A Contemporary Residential Complex Near the Sea
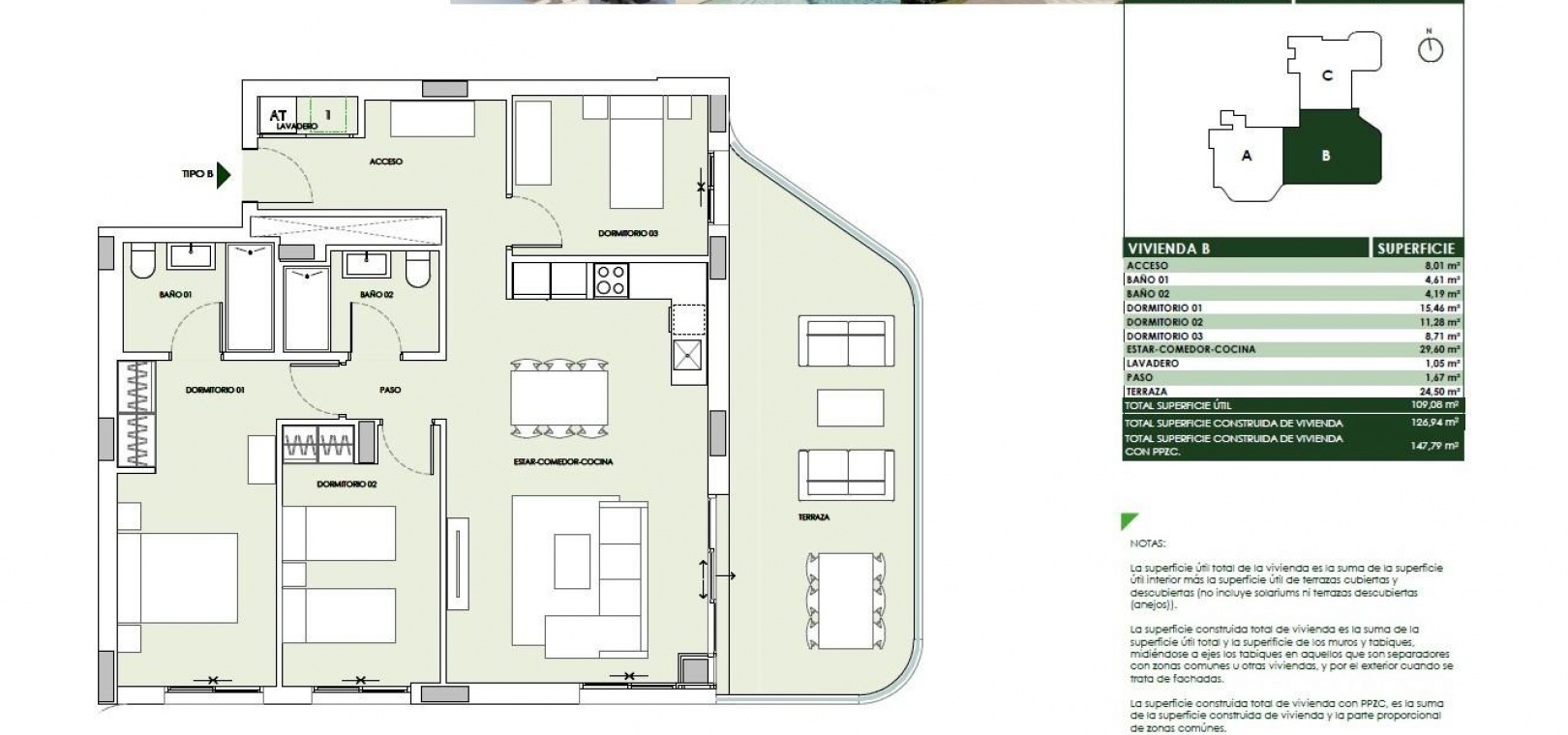
This exclusive residential complex features 120 new build apartments with 2 and 3 bedrooms, distributed across three modern towers. Located only 450 m from Playa del Cantal Roig and within the peaceful area of El Saladar, the development offers the perfect blend of coastal living and urban convenience. The center of Calpe is just minutes away, while the stunning Salinas de Calpe and the iconic Natural Park of Peñón de Ifach create a unique natural backdrop. Sea views are available from the third floor upwards.
Premium Amenities for an Exceptional Lifestyle
Designed to maximize comfort, the gated community offers a wide range of amenities, including an adult swimming pool, children’s pool, swimming lane, paddle court, gym, social club, landscaped gardens with play areas, bicycle parking and digital parcel lockers. Security and controlled access are provided through a concierge point. Parking and storage rooms are included in the price.
Elegant Homes With High Quality Features
Each apartment combines contemporary design with functional layouts and excellent orientations. Spacious terraces take center stage, offering the ideal setting to enjoy the Mediterranean climate. Homes include exterior carpentry with thermal break, motorized shutters, armored entrance door, fully equipped kitchens with appliances, ducted air conditioning and aerothermal hot water systems.
Discover Calpe and Its Excellent Surroundings
Calpe is one of Costa Blanca’s most emblematic seaside towns, known for its beaches, nautical lifestyle and rich Valencian heritage. The location offers unbeatable access: approximately 80 km to Alicante Airport, 12 km to Altea, 25 km to Benidorm and seamless connections via the A7 motorway and N332 road. Golf enthusiasts will find several golf courses within 25 km, while the Real Club Náutico de Calpe and Puerto Blanco Marina are less than 3 km away.
Your Ideal Home by the Mediterranean
Experience a new way of living in Calpe with modern homes designed for comfort, nature and relaxation. Contact us today to schedule your visit.
