Exclusive New Build Residential Community in Mijas with Exceptional Amenities
Modern Homes Between the Sea and the Mountains
Discover this private and exclusive development of 117 new-build homes in Mijas, located near the Costa del Sol Racecourse. Set between the Mediterranean Sea and the surrounding mountains, the project offers a peaceful natural setting with breathtaking views. This prime location combines nature, modern design, and excellent connections, making it one of the most attractive residential options on the Costa del Sol.
Elegant Homes with High-Quality Finishes
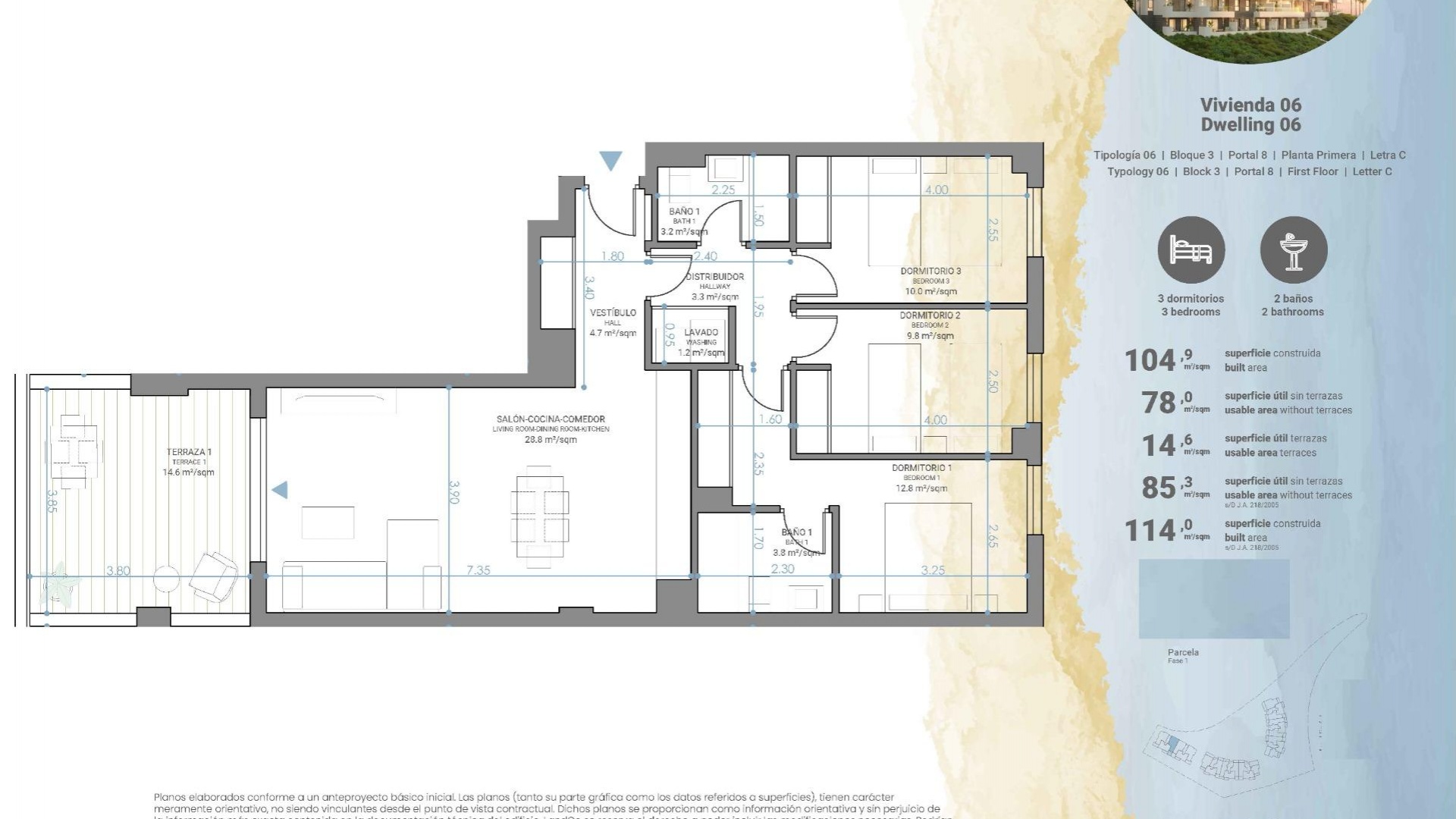
The development features 1, 2, and 3 bedroom apartments with bright terraces and spectacular penthouses offering terraces of more than 125 square meters and panoramic views. Every home includes a garage and storage room for maximum convenience.
Designed with superior materials and modern architecture, the homes come equipped with ducted air conditioning, fully furnished kitchens with main appliances, and aerothermal hot water systems to ensure both comfort and energy efficiency.
Resort-Style Community Areas
Enjoy an exceptional lifestyle with extensive common areas created for relaxation, wellness, and social life. The community features:
Landscaped gardens
Swimming pool
Outdoor fitness area
Fully equipped indoor gym
Yoga and mindfulness zone
Gourmet social room for gatherings and celebrations
This residential concept focuses on low construction density, privacy, natural surroundings, and premium quality, establishing a new benchmark in modern living on the Costa del Sol.
Prime Location in Mijas, Near Fuengirola
Located just north of Fuengirola and next to the Costa del Sol Racecourse, the development sits only 3 km from the beach and 25 minutes from Marbella. Mijas is known for its pleasant year-round climate and cosmopolitan atmosphere, attracting residents from all over the world.
Key Distances and Connections
Marbella: 25 km
Fuengirola Center: 4 km
Málaga Airport: 28 km
Gibraltar Airport: 105 km
Beaches of Mijas Costa: 3 km
Golf Courses: 5 to 10 km
Málaga City and María Zambrano AVE Station: 30 km
Cruise Port of Málaga: 30 km
With excellent transportation links and more than 300 days of sunshine per year, the Costa del Sol remains one of Europe’s most desirable residential and holiday destinations.
Your Ideal Home on the Costa del Sol Awaits
Contact us today for more information or to arrange a visit, and secure your new home in this exclusive residential community in Mijas.
