NEW BUILD VILLAS IN ELS POBLETS
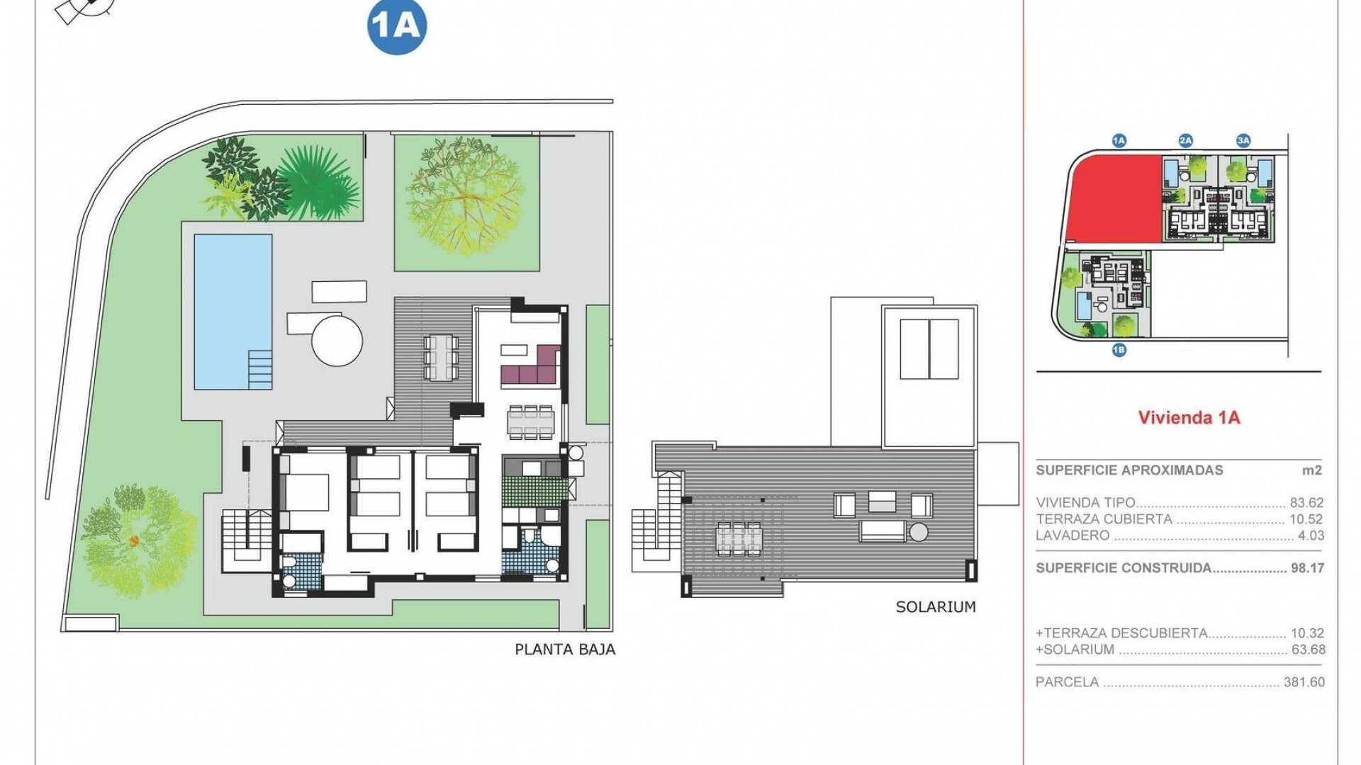
New Build development will have 4 magnificent properties with gardens, private parking and the possibility of a private swimming pool. In an unbeatable location next to the town centre, shopping centre and all kinds of services, three-bedroom, two-bathroom homes with garden and solarium will be built.
New Build villas build over 1 floor and has 3 bedrooms, 2 bathrooms, open plan kitchen with the lounge area, fitted wardrobes, private garden with the off road parking space, private solarium.
An options for a private pool at an extra cost.
Features:
•Built-in lined wardrobes, distributed with hanging bar, drawers and interior LED lighting.
•Installation of linear LED lighting throughout the house.
•Installation of air conditioning ducts in living room and bedrooms (including the machine).
•USB chargers in bedrooms.
•Installation of individual photovoltaic panels without battery on the roof according to regulations.
•Pre-installation of electric car charger.
•Reinforced concrete structure.
•Facade with a monolayer finish.
•PVC exterior carpentry with thermal break, double glazing with ¨Climalit¨ type air chamber and low emissivity.
•Armoured entrance door.
•Porcelain or similar interior flooring, the skirting board will be lacquered to match the interior carpentry.
•Vertical walls of bathrooms and toilets in porcelain or similar.
•Wall finished in smooth plastic paint.
•Kitchen with high and low cabinets, Silestone or similar countertop equipped with induction hob with integrated ventilation system and electric oven.
•Suspended vitrified porcelain sanitary ware with built-in cistern.
•Flat resin shower trays, with shower screens including.
• Sink with cabinet and mirror with built-in LED lighting in all bathrooms and toilets.
•Mixer taps.
•Inner doors white lacquered.
Els Poblets is situated between Alicante and Valencia, 1 hour from either airport.
Els Poblets is located in a plain formed by alluvial soils of the Girona River. It spans about 1 km of coastline on the Mediterranean and contains the beach of Almadrava.
Bordering Denia and El Verger there are 24km of stunning BLUE FLAG beaches to choose from.
The town and the beach are around 1km between each other, wheras many Spanish coastal towns are closed in the winter, Els Poblets is open all year with all amenities such as, bars, banks, shops, restaurants, supermarkets, hairdressers and is a friendly town with mixed nationalities, mainly Spanish with some ex pats.
