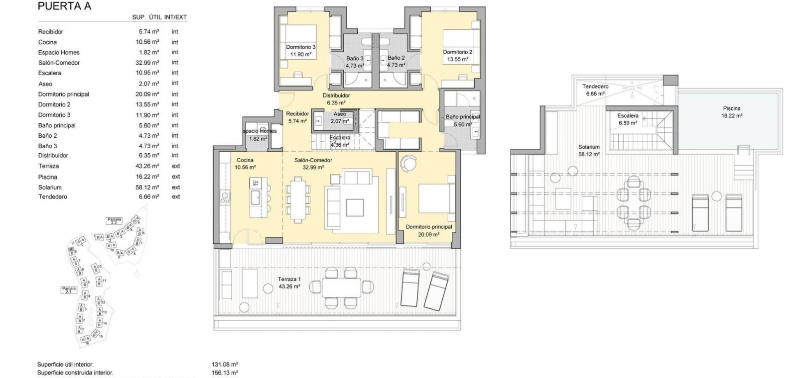
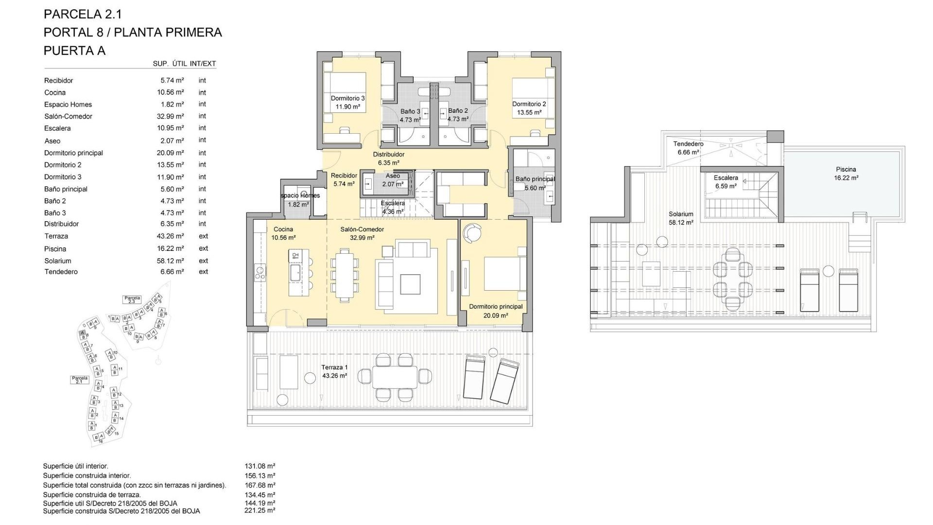
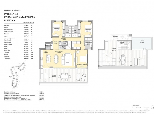
Omheind golfproject, op glooiende heuvels aan de rand van Marbella. Huizen met 3 en 4 slaapkamers met grote ramen, en woonkamer en keuken geïntegreerd in een open ruimte waardoor je op elk moment van de dag kunt profiteren van natuurlijk licht. Het terras is ontworpen om de natuur en de zee te integreren in je beste momenten. Uitgebreide groene zones onder eeuwenoude pijnbomen, spa en fitnessruimte, en 2 grote zwembaden met solarium om te genieten van de ontelbare uren zon die Zuid-Spanje te bieden heeft.
Marbella wordt beschouwd als de hoofdstad van de westelijke Costa del Sol. Badend in de zee en beschut tegen de bergen, met prachtige en uitgestrekte stranden met rustig water langs 27 km kustlijn, jachthavens, 21 golfbanen, ziekenhuis, strandbars, en een breed gastronomisch aanbod, van de typische strandbars en tapasbars tot de meest luxueuze Michelin-sterrenrestaurants. Dit alles, gevoegd bij het microklimaat met 320 dagen zon per jaar, maakt Marbella tot een van de meest gewilde bestemmingen om te wonen in Spanje.
