RODA GOLF RESORT - LOS ALCAZARES - ZU FUSS IN DIE STADT UND ZUM STRAND
Roda Residences – Luxuriöse Golfresort-Apartments im Herzen der Costa Cálida
Willkommen in den Roda Residences , einem exklusiven Neubauprojekt mit nur 36 luxuriösen 3-Zimmer-Apartments in idealer Lage im begehrten Roda Golf & Beach Resort nahe Los Alcázares an der Costa Cálida. Perfekt gelegen, nur wenige Minuten von den goldenen Stränden des Mar Menor entfernt, bietet sich hier die einmalige Gelegenheit, elegantes mediterranes Wohnen in einer sicheren, geschlossenen Golfanlage zu genießen.
Eine unschlagbare Lage am Meer
Nur eine kurze Autofahrt entfernt liegt Los Alcázares, ein pulsierendes Küstenstädtchen mit einem charmanten Platz, zahlreichen Annehmlichkeiten wie Supermärkten, Boutiquen, Banken und einer fantastischen Auswahl an Bars und Restaurants. Schlendern Sie entlang der malerischen Strandpromenade, genießen Sie die sanfte Meeresbrise und stoßen Sie mit einem Glas Wein auf den Sonnenuntergang an – das ist Spanien von seiner schönsten Seite.
Resort-Wohnen mit Premium-Annehmlichkeiten
Das Roda Golf & Beach Resort bietet einen prestigeträchtigen 18-Loch-Golfplatz, ein stilvolles Clubhaus mit Restaurant und Sonnenterrasse sowie einen 24-Stunden-Sicherheitsdienst für absolute Sicherheit. Die Anlage selbst ist wunderschön angelegt und verfügt über üppige Gemeinschaftsgärten und einen atemberaubenden Poolbereich zum Entspannen und Erholen.
Modernes Design mit luxuriöser Ausstattung
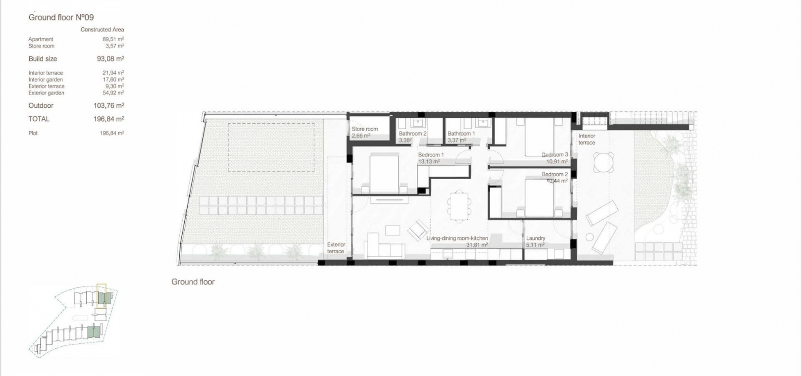
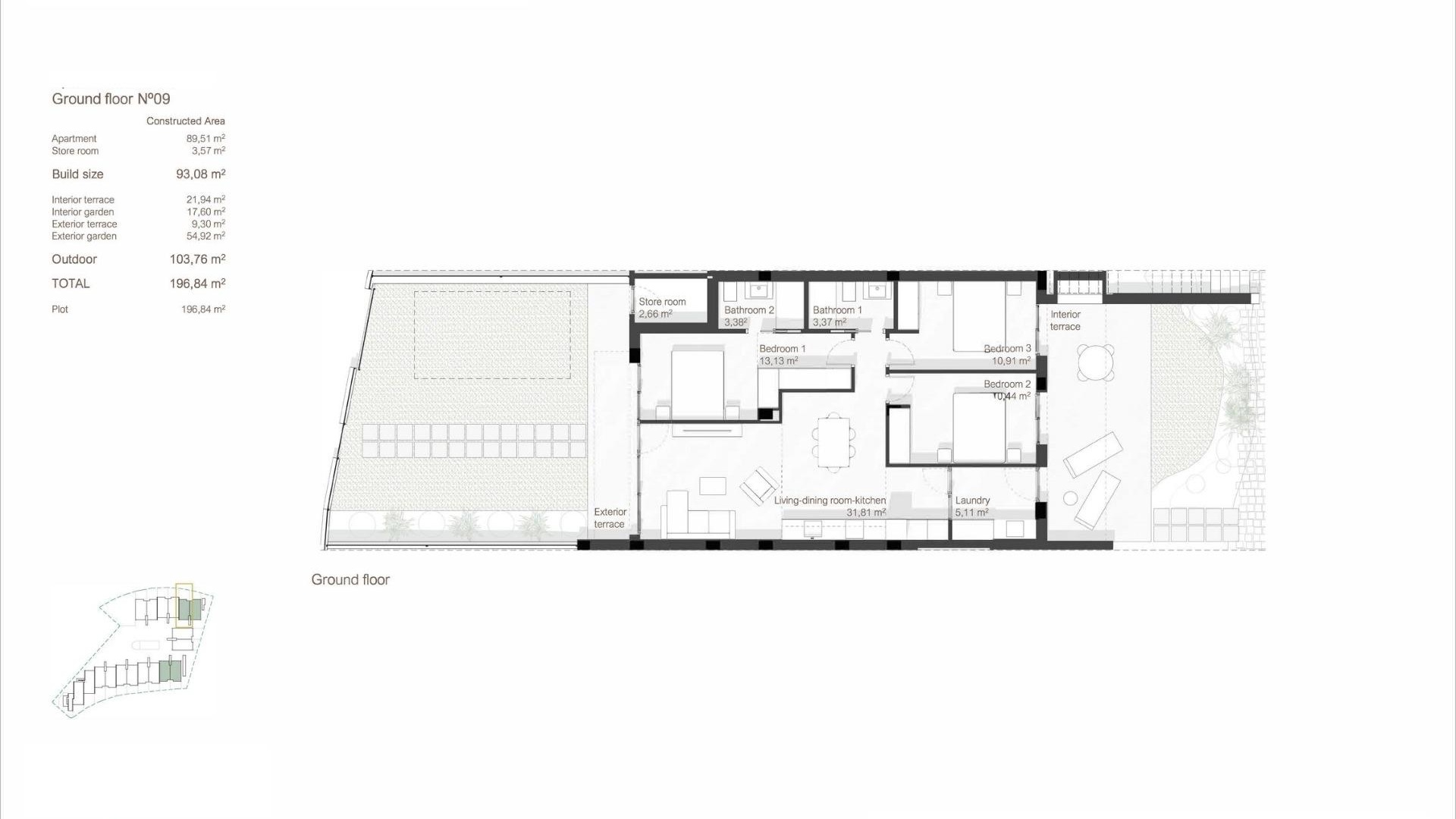
Käufer haben die Wahl zwischen Erdgeschosswohnungen mit großzügigen Privatgärten oder Penthousewohnungen mit eigener Dachterrasse – ideal, um den ganzen Tag Sonne zu tanken. Jede Immobilie bietet eine großzügige, lichtdurchflutete Raumaufteilung mit:
Offener Wohn- und Essbereich mit raumhohen Terrassentüren
Voll ausgestattete moderne Küche mit integrierten Geräten: Backofen, Herd, Dunstabzugshaube, Kühl-/Gefrierschrank, Geschirrspüler und Mikrowelle
Drei großzügige Doppelschlafzimmer mit Einbauschränken
Hauptschlafzimmer mit eigenem Bad
Voll ausgestattetes Gästebad
Hintere Schlafzimmer mit direktem Zugang zu einer großen privaten Terrasse und einem Garten
Zu den weiteren Ausstattungsmerkmalen gehören LED-Beleuchtung im gesamten Gebäude, eine sichere Tiefgarage und ein privater Abstellraum.
Entdecken Sie den Lebensstil, den Sie verdienen
Egal, ob Sie nach einem dauerhaften Wohnsitz, einem luxuriösen Feriendomizil oder einer soliden Investition in der Region Murcia suchen, Roda Residences bietet alles, was Sie brauchen.
????Buchen Sie noch heute Ihre Besichtigungstour bei New Spanish Properties und lassen Sie sich von unserem Expertenteam zu Ihrem perfekten Platz an der Sonne führen.
